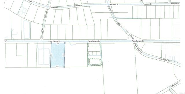
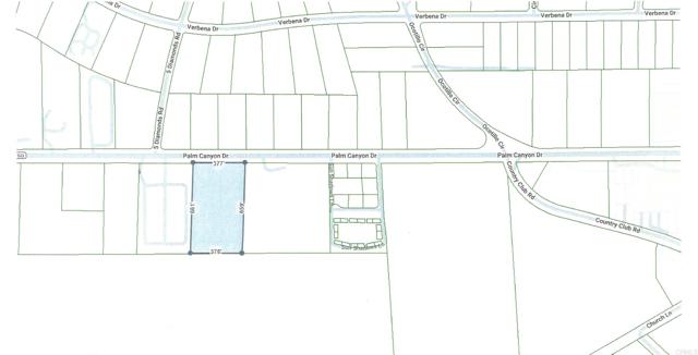
0 Palm Canyon Dr, Borrego Springs, CA 92004
California Regional Multiple Listing Service Listing Number: NDP2603030
0 Palm Canyon Dr, Borrego Springs, CA 92004
5.2400 Acres
$125,000
View Original Image
Enter Your Information to Receive Updates on This Property
Your Contact Info Will Be Shared with the Listing Agent
Name
Email
Submit
Successfully Submitted!
Continue
Failed!
Go Back
Details
Link Copied
Send To
Name
Email
From
Your Name
Your Email
Your Phone
Subject
Message
Submit
Successfully Submitted!
Continue
Failed!
Go Back
Additional Media